

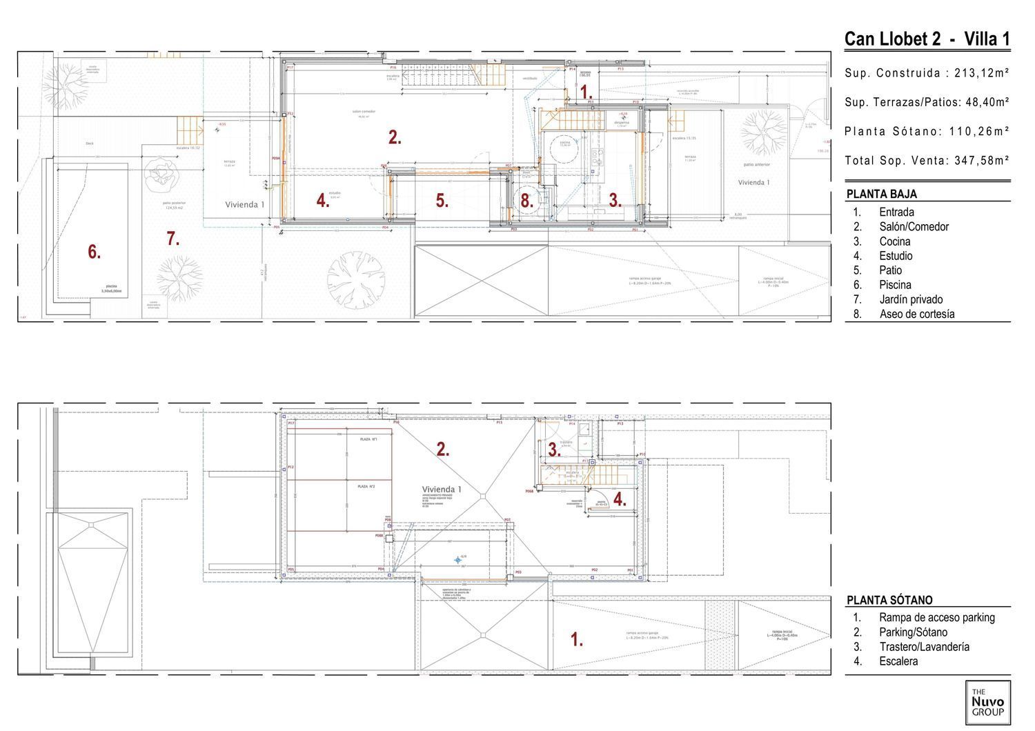
Exclusiva promoción de 9 villas de obra nueva ubicada en Bellaterra, una de las zonas residenciales más demandadas junto a Sant Cugat, donde la tranquilidad del entorno natural se combina con una excelente conexión con Barcelona.Este conjunto residencial, en fase final de construcción con entrega prevista en 1–2 meses, ofrece viviendas semiadosadas de diseño contemporáneo, concebidas para maximizar el confort, la eficiencia energética y la calidad de vida.Cada propiedad se distribuye en tres plantas más garaje subterráneo privado, con una arquitectura funcional y espacios amplios y luminosos. Disponen de cuatro dormitorios, dos de ellos en suite con vestidor y baño completo, además de un total de cuatro baños.En el exterior, cada vivienda cuenta con piscina privada, creando un entorno ideal para disfrutar durante todo el año. En cuanto a equipamiento, incorporan sistema de aerotermia y suelo radiante, garantizando una climatización eficiente y un alto nivel de confort en cualquier estación.La urbanización se sitúa en una calle tranquila, rodeada de naturaleza, y a escasos minutos de todos los servicios esenciales: estación de FGC a 2 minutos en coche o 15 minutos a pie, supermercados, farmacia, colegios y la Universidad Autónoma de Barcelona.Su ubicación estratégica permite un acceso rápido a Barcelona y sitúa Sant Cugat a tan solo 5 minutos, convirtiéndola en una opción ideal tanto para residencia habitual como para inversión.Una oportunidad única para adquirir una vivienda de obra nueva en un enclave privilegiado, donde diseño, privacidad y ubicación se unen en perfecta armonía.
Póngase en contacto con un especialista
online

General director, CEO
Haga su pregunta al agente responsable de la propiedad elegida
Y le enviaremos la información detallada.
O reserve la propiedad pulsando en el siguiente enlace

Alegría presenta un nuevo complejo residencial de lujo: Alegría XII, a tan solo 20 metros de la playa
Casa de seis pisos que se encuentra cerca de la playa de Los Locos en Torrevieja. A la venta - 29 apartamentos (de 1, 2 y 3 dormitorios). El complejo cuenta con una amplia zona chill out, piscina climatizada de agua de mar, sauna finlandesa, aparcamiento de dos niveles.
Ir al catálogo



Reserve una consulta con un experto para obtener los servicios
Nos pondremos en contacto con usted en 15 minutos.

Para celebrar nuestro cumpleaños, oferta especial – un 11% de descuento en apartamentos de obra nueva, situados en los complejos residenciales de Alegria 10, Alegria 12, Alegria 14.
Oferta válida hasta el 15 de Octubre de 2020. Más informaciónAVISO LEGAL
Permitir el uso:
Política de privacidad
Permitir el uso:
Política de privacidad redes sociales
Permitir el uso: