

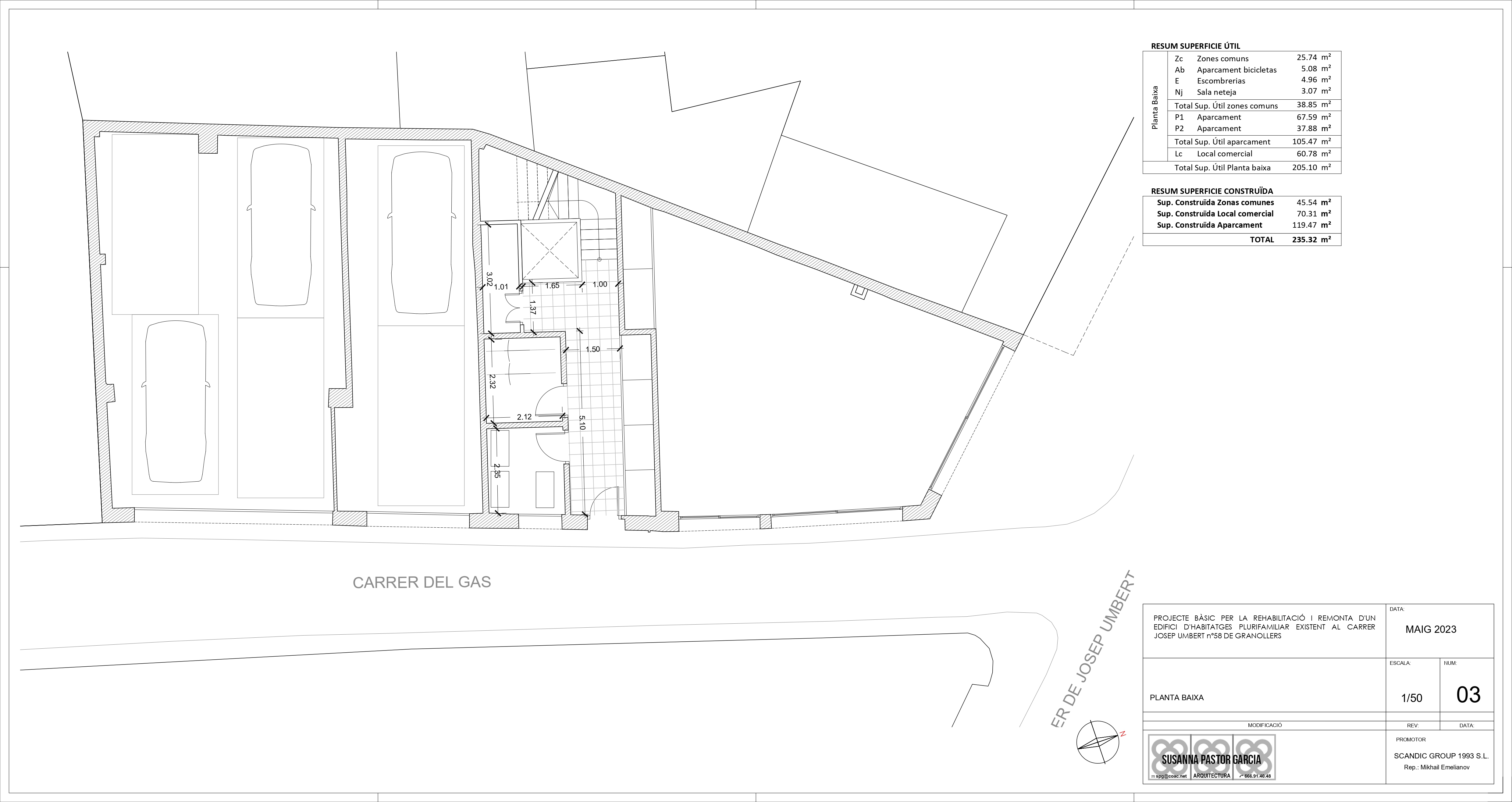
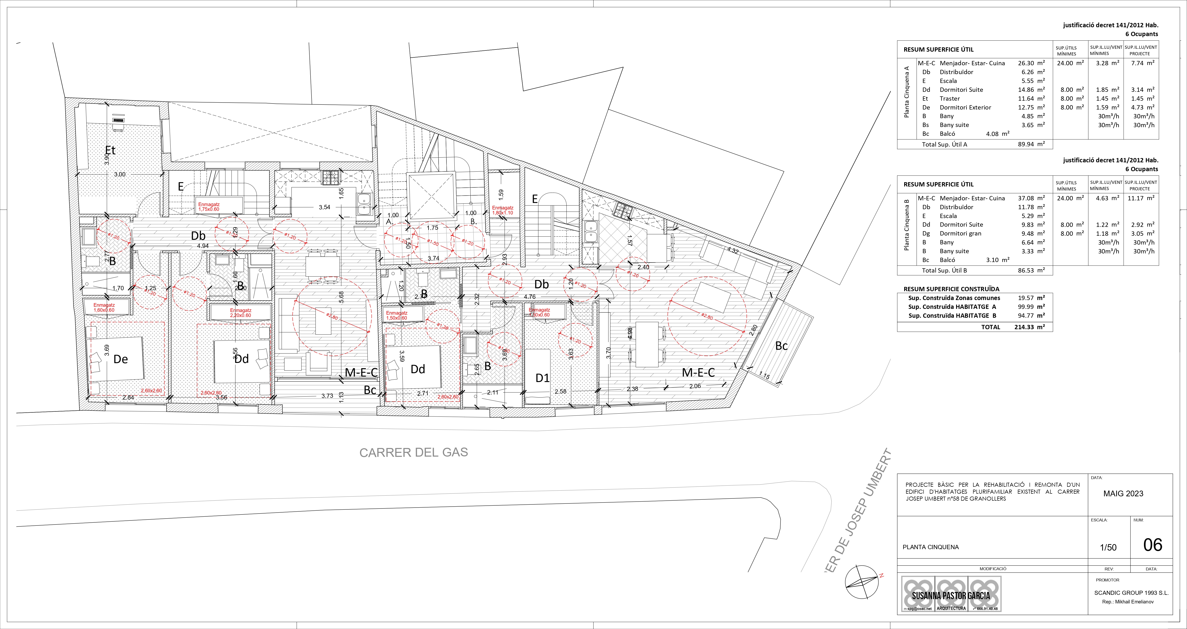
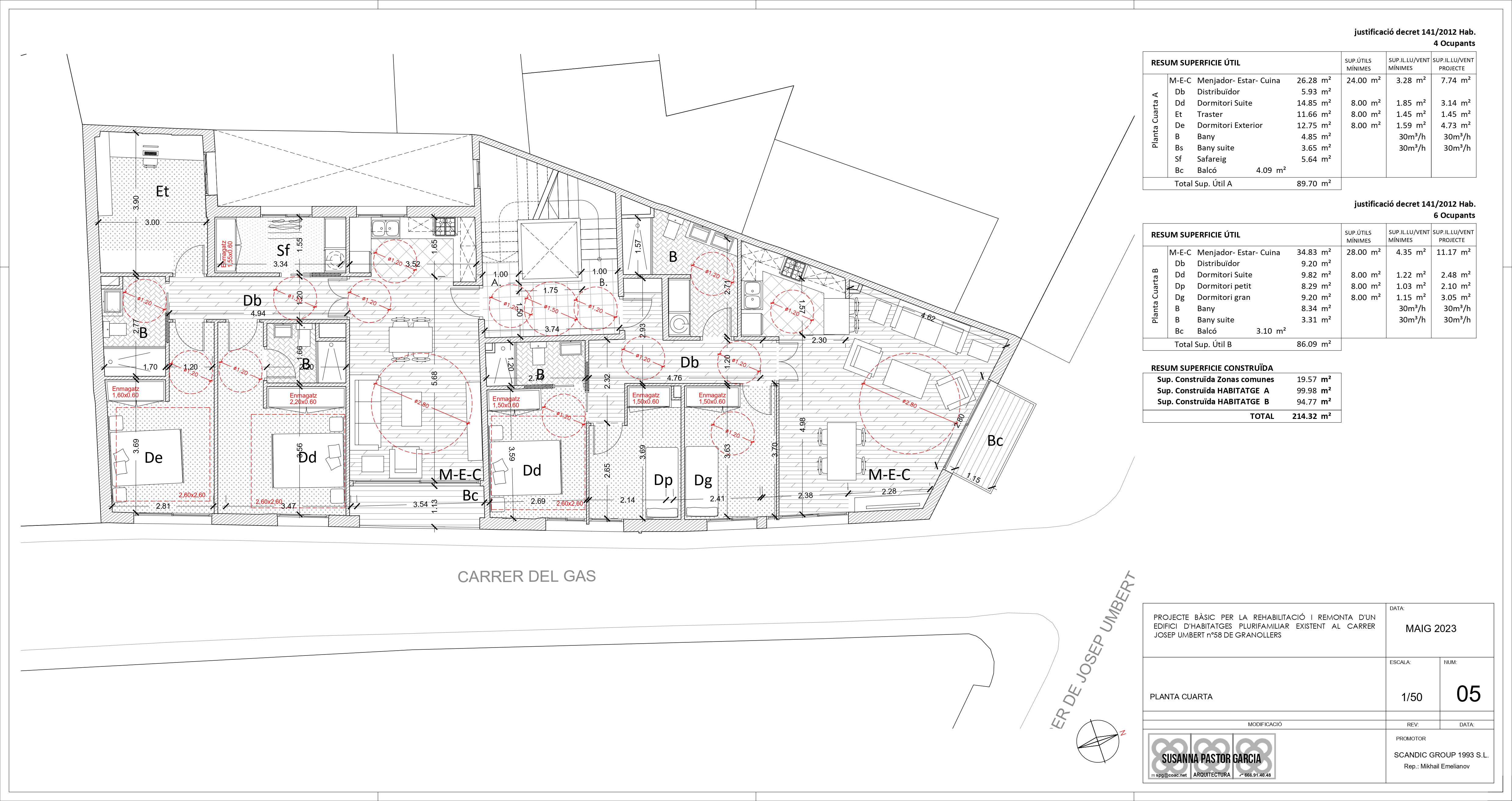
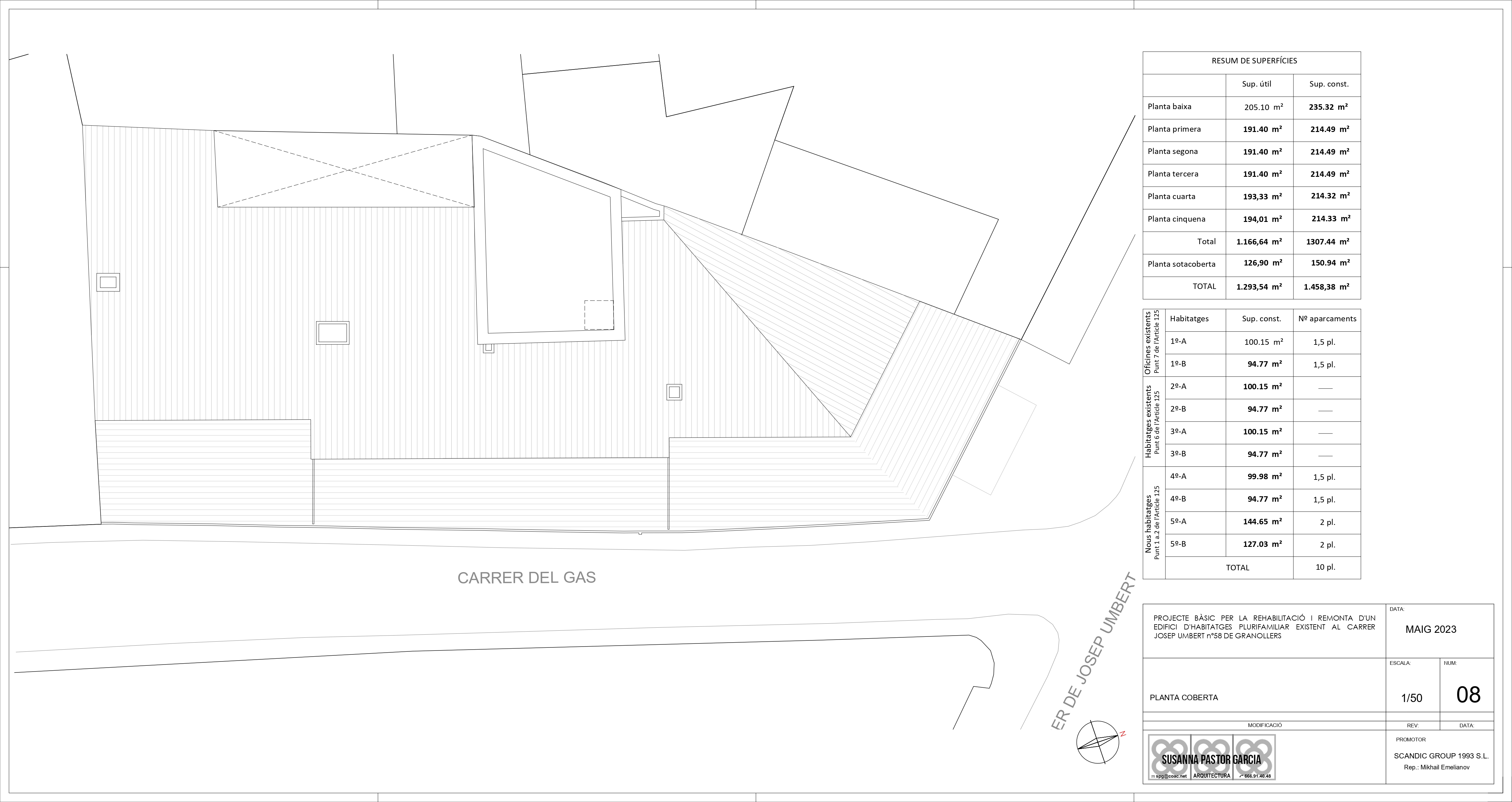
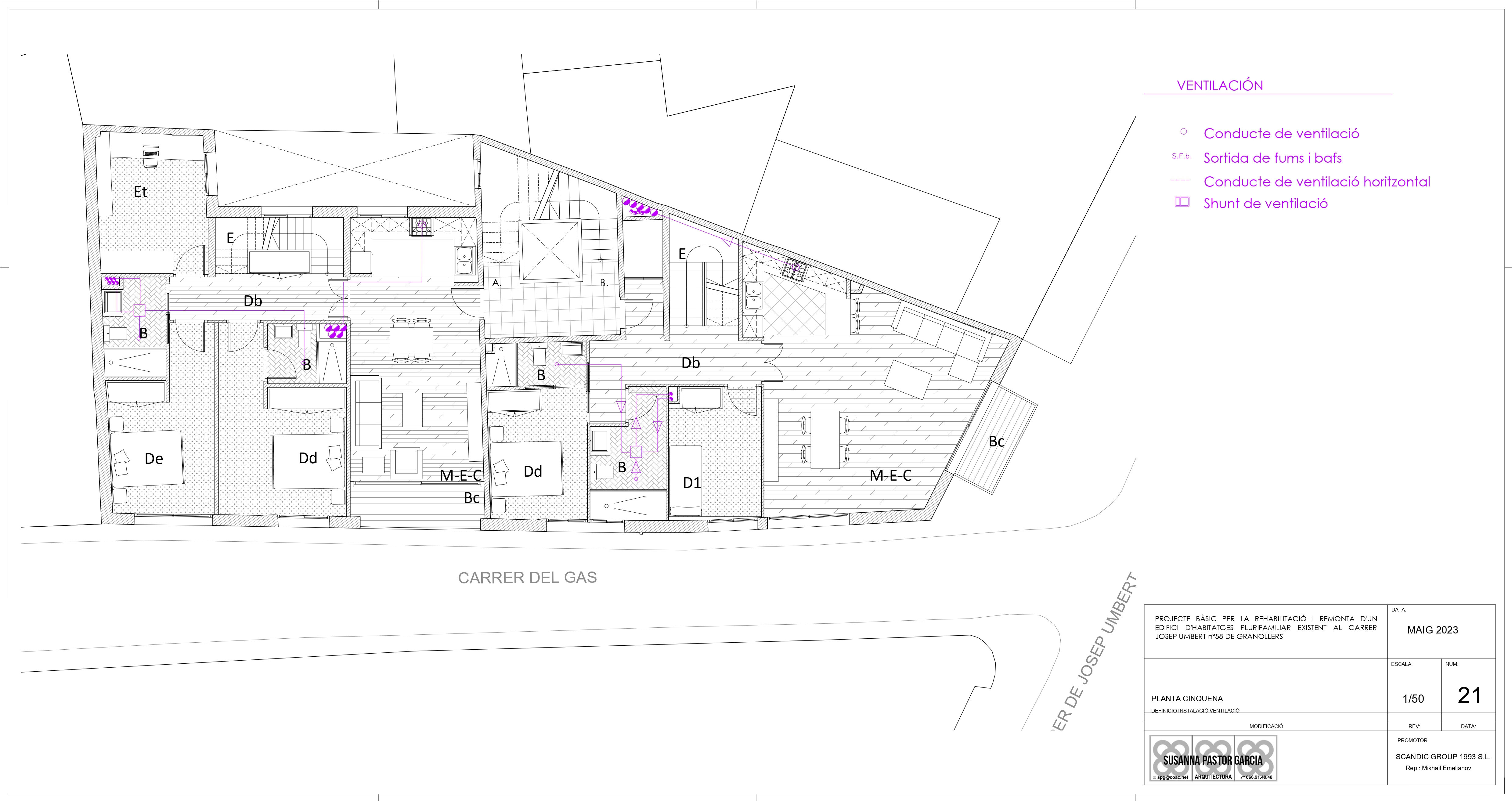
Готовый девелоперский проект в городе Granollers (пров. Барселона): реконструкция существующего здания с надстройкой двух дополнительных этажей. Все согласования и лицензия на строительство уже получены. Итоговый объект: коммерческий этаж + 5 жилых этажей, 10 квартир, коммерческое помещение и 6 парковочных мест, общая полезная продаваемая площадь — 1 241 м². Описание проекта:Проект ориентирован на сегмент современного жилья comfort+ и качественные коммерческие площади. Цены реализации заложены ниже верхней границы рынка (~−10%), что увеличивает ликвидность: для квартир — 4 050 €/м², для коммерции и паркингов — 2 700 €/м². Общая прогнозная выручка от продаж составляет 4,75 млн €. Финальный вывод для инвестора:Общий объём инвестиций (покупка объекта, реконструкция, операционные расходы) — 3,36 млн €. Прогнозируемая чистая прибыль — около 1,39 млн €, что даёт:ROI ≈ 41% (рентабельность инвестиций)IRR ≈ 30–42% (годовая доходность с учётом сроков проекта)Срок реализации: 12–18 месяцев. Проект представляет собой быстрый и понятный девелоперский кейс с готовой документацией, прозрачной финансовой моделью и высокой доходностью, подходящий для частного, фондового и банковского капитала.Свяжитесь с нами для получения дополнительной информации о данном инвестиционном предложении.Alegria realestate — эксперты в сфере инвестиционной недвижимости и девелопмента в ИспанииЗемельные участки в Барселоне, её пригородах и других ключевых городах Испании — один из наиболее перспективных сегментов рынка. Высокий спрос со стороны инвесторов, ограниченное предложение и рост стоимости активов делают инвестиции в участки под застройку особенно привлекательными.Эффективная работа в этом направлении требует глубокого понимания градостроительных норм, юридических аспектов и локальной практики. Сделки с участками проходят в закрытом профессиональном сообществе и сопровождаются по чётко установленным протоколам.Процесс взаимодействия с инвестиционными участками включает:• Подписание соглашения о признании гонорара (стандартная процедура, подтверждающая серьёзность намерений и открывающая доступ к информации);• Персональную встречу и утверждение списка участков с юридической фиксацией передачи информации;• Индивидуальные показы объектов в сопровождении профильных специалистов;• Выбор участка и подписание LOI (письма о намерениях);• Проведение юридической и технической проверки (due diligence);• Заключение сделки у нотариуса.Почему выбирают Alegria realestateМы — одна из немногих компаний с головным офисом в Барселоне и представительством в Мадриде, глубоко интегрированных в профессиональное сообщество девелоперов, архитекторов и инвесторов. Команда из более чем 70 экспертов с опытом более 20 лет предоставляет нашим клиентам доступ к тщательно отобранным участкам off-market, не представленным в открытых источниках.Сотрудничество с нами — это стратегический выход на закрытый рынок земельных активов: под жилую, коммерческую или смешанную застройку, а также под редевелопмент — в Барселоне и других регионах Испании.
Свяжитесь со специалистом
online

Генеральный директор, СЕО
Задайте вопрос ответственному менеджеру по объекту
И мы пришлем вам детальную информацию
Или забронируйте объект перейдя по ссылке

Компания Alegria представляет новый жилой комплекс бизнес-класса Alegria XII всего в 20 м от моря
Шестиэтажный дом расположен рядом с пляжем Лос-Локос в Торревьехе. В продаже – 29 квартир (с 1,2 и 3 спальнями). В комплексе имеются просторная chill out зона, бассейн с морской водой и подогревом, финская сауна, двухуровневый паркинг.
Перейти в каталог



Получите консультацию эксперта по оформлению услуги
Мы свяжемся с вами в течение 15 минут.

В честь праздника действует СПЕЦПРЕДЛОЖЕНИЕ – 11% скидка на новые квартиры в ЖК Alegria 10, Alegria 12, Alegria 14
*акция действует до 15.10.2020 Узнать подробностиCOOKIES
Мы используем куки-файлы, как собственные, так и третьих лиц, чтобы улучшать предлагаемый нами сервис посредством анализа характера пользования сайтом. Вы можете принять условия использования куки-файлов, кликнув по кнопке "Принять", а также внести собственные настройки или же отказаться от их использования, нажав сюда.
ПринятьAVISO LEGAL
Разрешить использование:
Política de privacidad
Разрешить использование:
Política de privacidad redes sociales
Разрешить использование: